Тема «Исполнительная техническая документация при строительстве зданий и сооружений»




Текст вопроса: (Пожаловаться на вопрос!)

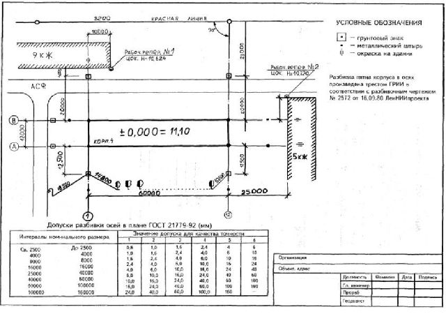
При соответствии действительных размеров, отметок, уклонов, сечений (диаметров), привязок и других геометрических параметров номинальным значениям (с установленными предельными отклонениями) на исполнительной документации по подземным инженерным сетям делается надпись

Пожалуйста, выберите правильный ответ:




Пожалуйста,
выберите правильный ответ и введите проверочный код,
указанный на картинке

Прямая ссылка на страницу темы: http://15-51.com/tID:691-079-530


Тема: (Пожаловаться на тему!)

Идентификатор темы Название Автор Создана Рейтинг Популярность
tID:691-079-530 Исполнительная техническая документация при строительстве зданий и сооружений uID:146-937-462 2017-12-03 17:39:07 63 640

Аннотация: (Пожаловаться на тему!)

В теме рассматриваются основные виды и формы исполнительных документов, применяющиеся в процессе строительства


Язык темы - Русский

Показать правила темы